產品介紹
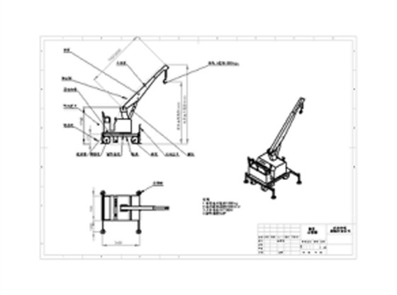
1.臥式驅動輪24V0.75KW,無須人工手推行走,輕松自如;
2.蓄電池24V170AH驅動行駛,白天使用,夜晚充電,自動跳轉;.
3.吊臂1900-2500可液壓伸縮.吊臂上升和下降;
4.支撐腿抽拉式可校正平衡. 自行走吊車可配合車間的行車使用,是車間良好的輔助工具;
5.行走系統24V, 上升下降380V50HZ三相電.非標型可據客戶要求訂制。
1.Horizontal driving wheel 24v0.75kw, no need to push in driving, easy and comfortable;
2.24V170AH driving battery power, use in day time, , intelligent battery couldrechargein night;
3.Arm reach 1900-2500mm, hydraulic extend and return, arm could be lift up and down;
4.Straddles are telescopic manually, and helps in balance correction. Crane could coordinatewith overhead crane in workshop, a nice assist tool in workshop;
5.Driving system 24v, lifting up and down by AC power, non-standard could be customized upon request.
產品參數
產品圖片
1.客戶收到的產品與訂貨產品型號不符。
3.產品存在不能正常使用和無法修復的缺陷。
4.在交貨的運輸過程中造成產品缺損,無法修復。
售后說明
1.整車保修一年
2.整車鋼結構焊接斷焊或斷裂一年內正常保修(超載導致變形,變形不保修)
3.24小時到48小時內到達或解決
4.提供操作視頻講解更換配件
5.終身提供配件
鄭重承諾
不好使用包退換!


全電動搬運車(貨叉加長型)
半電動堆高車(不銹鋼寬腿)
帶護頂架全電動堆高車
自行走吊車(一汽大眾款)
半電動堆高車(不銹鋼寬腿)
半電動堆高車(不銹鋼304材質)
8T重型電動搬運車
雙門架全電動堆高車